
Hochmoderne 2,5-Zi-Penthouse-Wohnung im Bellevue in Schweinfurt
(Dieses Objekt ist bereits verkauft worden.)
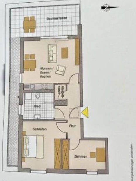
BESCHREIBUNG IM DETAIL
- Bad mit Fenster und Dusche
- Terrasse
- Ausblick: Fernblick
- Einbauküche, offene Küche
- barrierefrei, rollstuhlgerecht
- Böden: Fliesenboden, Parkett
- Fenster: Kunststofffenster
- Zustand: Erstbezug
- kontrollierte Be- und Entlüftungsanlage
- Weitere Räume: Kelleranteil, Abstellraum
- Anschlüsse: Kabelanschluss
Wohnanlage
- Baujahr: 2022
- Zustand: Neubau
- Personenaufzug
- 1 Stellplatz: Außen-Stellplatz, Tiefgarage
BESCHREIBUNG DER LAGE
Die Bellevue liegt im Westen von SW, ruhig mit viel Grün, aber doch mitten in Schweinfurt. Sehr gute Verkehrsanbindung und Infrastruktur. Die Wohnung selbst ist im 3. OG mit Aufzug.
BESCHREIBUNG DER AUSSTATTUNG
Diese moderne Penthousewohnung besticht durch ihre offene und helle Bauweise, sowie die Verarbeitung edler Materialien. Energetisch ist hier an alles gedacht worden.... Fußbodenheizung, geringer Wärmeleitkoeffizient bei den Fenstern (3-fach verglast) und automatische Be- und Entlüftung. Auch die tollen Parkettböden sind geölt, so dass das Material geschützt ist, es aber trotzdem atmen kann.
Eine EBK haben die Eigentümer bereits vorgesehen, diese wird Anfang September geliefert. Die Fotos zeigen die Anordnung, das Holz ist viel heller in Natura. Das großzügige Bad verfügt über eine ebenerdige Dusche, ein Fenster und Stellmöglichkeit für Waschmaschine und Trockner. Eine tolle Terrasse lädt Sie zum Relaxen und Entspannen ein.
Wunderschön ist auch der unverbaubare Blick in die Ferne. Zur Wohnung gehört ein Keller, ein TG-Stellplatz (50,- /mtl.) und die Möglichkeit der Nutzung des Fahrradkellers. Tierhaltung ist leider nicht erwünscht!
Wichtig: Die Wohnung soll für mindestens 2 Jahre vermietet werden, danach wird das Mietverhältnis unbefristet und somit flexibel.
Telefon: 09721 6755862
Mobil: 0177 3526239
E-Mail: info@sonnen-immo.de




















